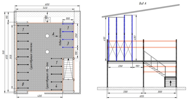
Монтаж стеллажа для хранения печатных форм

Завершён проект по подбору и монтажу системы хранения печатных форм для одного из ведущих производителей влажных салфеток в России.

Метбиз предлагает своим клиентам наилучшие решения для оптимизации управления ресурсами и повышения производительности.

Цели проекта:

  • Оптимизация хранения:

Обеспечить эффективное и безопасное хранение печатных форм, которые играют ключевую роль в процессе производства.

  • Увеличение доступности:

Сделать доступ к печатным формам и учёт их проще, чтобы сократить время, затрачиваемое на поиск и перемещение.

  • Улучшение организации:

Систематизировать размещение форм, чтобы избежать повреждений.

Если у вас возникнут вопросы или вам понадобится нестандартная продукция, пожалуйста, обращайтесь.
Мы будем рады предоставить вам дополнительную информацию о наших услугах.

Сотрудники компании Метбиз всегда готовы помочь вам в решении задач, связанных с оптимизацией хранения и управления ресурсами.

Заказать похожий проект